一、健康服务与管理实验室
实验室定位与目标
健康服务与管理实验室是支撑健康服务管理等专业的跨学科实践平台,目的是进行健康检测、健康大数据分析、健康风险评估、健康管理方案制定、慢病干预、健康教育、智慧健康管理等实验教学活动。
实验模块设计
健康服务与管理专业实验室围绕健康检测、健康风险评估、健康干预与指导的健康管理服务流程(即“测-评-管(干预)”的流程)来进行设计,支持本专业健康管理业务场景仿真教学。
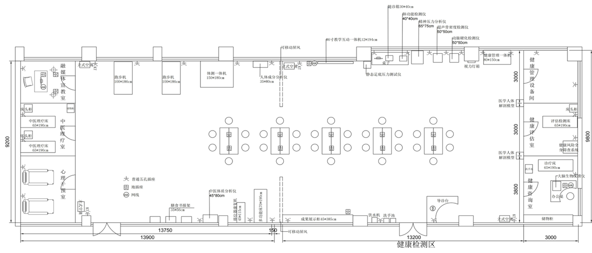
健康服务与管理专业实验模块如下图所示:

图1 健康服务与管理专业实验室模块
实验室功能分区:
1.健康检测与评估区
配备健康体检一体机、人体成分评测仪、骨密度检测仪、动脉硬化检测仪、运动心肺功能测评系统等设备,支持员工开展生理指标检测及健康风险评估实训。
集成健康管理信息系统V5.0,实现健康档案数字化管理及风险评估。。
2.健康干预实训区
设置慢病管理场景(如高血压、糖尿病),配备远程监测设备(智能手环、血糖仪)及慢病管理信息系统,训练员工制定个性化干预方案。
配备膳食营养分析与智能配餐系统,支持营养食谱设计。
配备食材展示柜、食物仿真模型及营养代谢分析工具,强化员工营养干预技能。
配置跑步机、瑜伽垫、体感训练系统、平衡摇摆训练器等器材,结合PBL(问题导向学习)模式开展运动干预实践。
3.中医健康管理实践区
配备中医体质辨识仪、中医经络检测仪、智能舌象分析仪、理疗床、中医理疗设备等,开展中医体质辨识、状态评估、理疗康复实践。
4.健康教育与传播工坊
配备多媒体制作设备(绿幕演播室、平面设计终端),用于健康科普材料创作、新媒体健康传播项目实践。

实验室平面图
教学与科研支撑
实践教学:主要用于开展《健康管理学》、《健康心理学》、《健康运动学》、《健康营养学》、《健康教育与健康促进》、《健康信息管理》、《健康服务与管理技能》、《老年健康服务与管理》、《职业健康服务与管理》、《社区健康服务与管理》等课程的教学和科学研究工作。也可用于健康管理师的职业培训和社会服务。

二、健康保险学实验室
英国上市公司365健康保险综合实验室建成于2018年12月,主要用于健康保险类课程、养老保险类课程、医疗保险类课程、保险精算类课程、投资理财类课程、保险综合实训演练类课程的教学和科研使用。实验室现有实验用房使用面积70平方米,资产总值为114万多元,其中智能讨论实训套件信息岛8台,服务器1台,员工智能操作端40台,多媒体教学系统及配套设备一套。
软件方面:安装了保险综合实训软件、保险智能一体化实训平台软件、社保五险合一实训教学考评软件、农村医疗养老实训教学软件、投资理财实训教学软件、寿险精算实验教学软件、非寿险精算实训教学软件、保险营销智能实训课程包软件等专业教学软件。
健康保险综合实验室承担保险学、医疗保险学、人身保险学、社会保障学、健康保险学、养老保险学、财产与责任保险学、风险管理学、精算学原理投资学、国际投资学、财务管理学、保险营销学、保险综合实验等相关课程的实训教学任务。


